Porzione di trifamiliare in vendita

Parma, Via Paradigna - Paradigna
€ 590.000
5 locali 5 locali
288 Mq 288 Mq
3 bagni 3 bagni

Porzione di trifamiliare in vendita

Parma, Via Paradigna - Paradigna

Descrizione annuncio

Porzione di trifamiliare con giardino privato e portico in contesto residenziale riservato

In un quartiere tranquillo e riservato, lontano dal traffico ma in posizione comoda ai principali servizi, proponiamo in vendita elegante porzione di trifamiliare sviluppata su più livelli, con ingresso indipendente, ampio giardino esclusivo e portico coperto.

L’ingresso avviene tramite un cortile privato che introduce al curato giardino di proprietà, ideale per momenti di relax e convivialità all’aperto. Il portico, spazioso e facilmente arredabile, rappresenta un raffinato prolungamento della zona living, perfetto per vivere gli spazi esterni in ogni stagione.

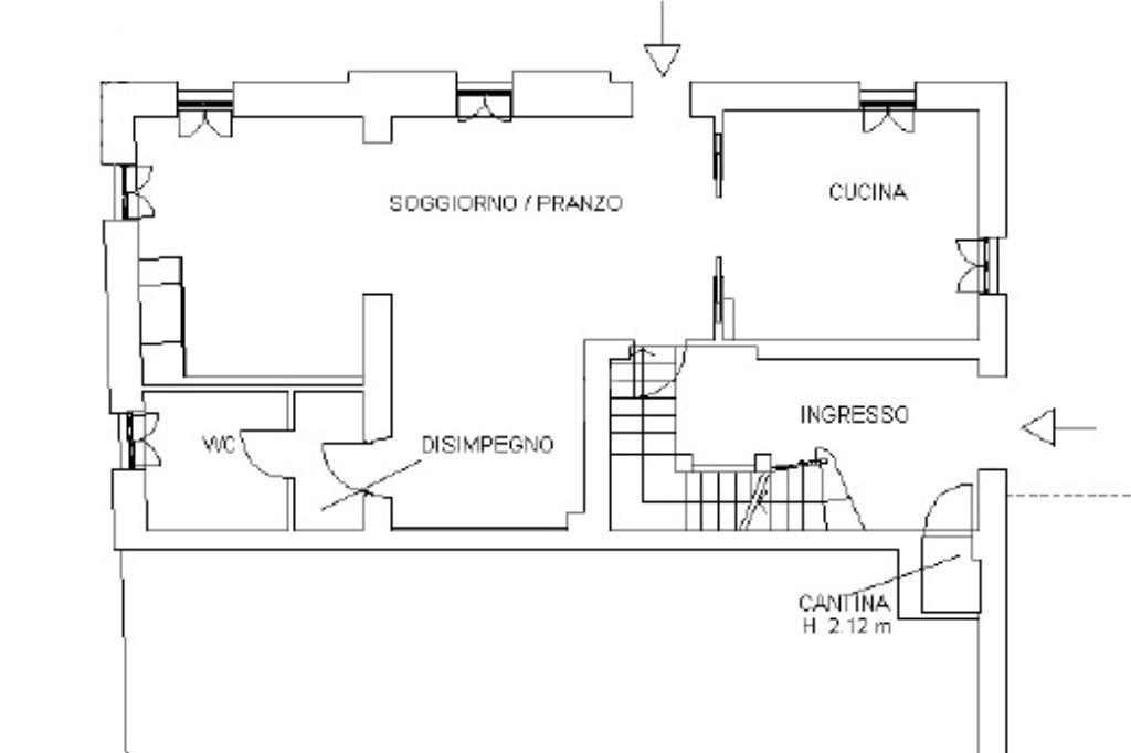
Al piano terra si sviluppa la zona giorno, ampia e luminosa, composta da soggiorno doppio, cucina abitabile e bagno finestrato completo di ogni dotazione.
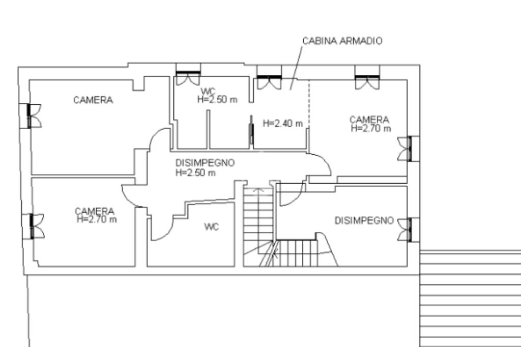
Una scala interna in muratura, caratterizzata da eleganti finiture rustiche, conduce al piano superiore, dove troviamo un ampio disimpegno arredabile, tre camere matrimoniali — di cui una dotata di cabina armadio e bagno privato — e un ulteriore bagno a servizio del piano.

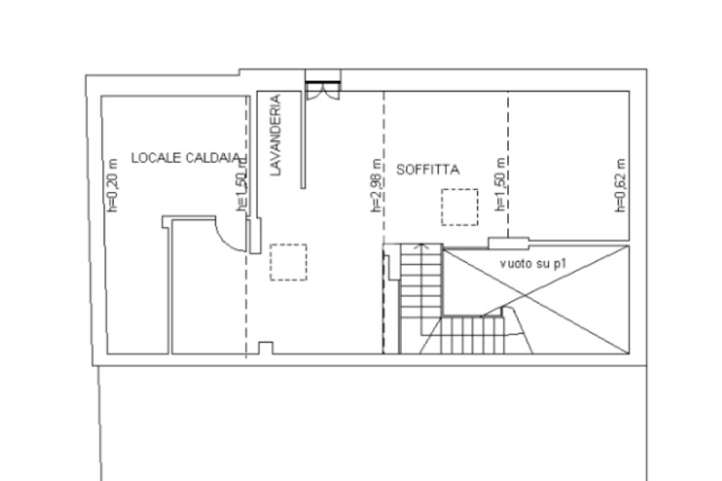
All’ultimo livello, ambienti versatili e ben illuminati offrono la possibilità di realizzare spazi dedicati al tempo libero, una zona lavanderia e un locale tecnico.

La proprietà rappresenta la soluzione ideale per chi desidera una residenza recente, pronta da abitare, caratterizzata da ampie metrature interne, spazi esterni riservati e un contesto abitativo silenzioso e ben collegato ai principali servizi.

Le presenti informazioni non costituiscono elemento contrattuale.

Mostra tutto

Nelle vicinanze

Trasporto pubblico Trasporto pubblico
Avis
Avis
1,2 Km
Trasporto pubblico
1,2 Km
Ricariche auto elettriche Ricariche auto elettriche
AG Hotel e-Station
1,2 Km
Ikea Iren
2,1 Km
Supermercati Supermercati
Aldi
1,9 Km
ECU discount
1,9 Km
Ipercoop
2,5 Km
Interspar
3,0 Km
Negozi Negozi
Il Foornetto
1,5 Km
Bar Bar
Bar
2,2 Km
Ristoranti Ristoranti
La locanda di Sparafucile
460 m
Autogrill
630 m
Roadhouse
1,0 Km
arigatò wok soshi - Ristorante Cinese Giapponese
1,0 Km
Il Gabbiano - Ristorante Pizzeria
1,0 Km
Mostra tutto

Caratteristiche

Rif.:
61131835
Piano:
Su più livelli di 3
Totale piani:
3
Camere da letto:
3
Arredamento:
Parziale
Condizionamento:
Autonomo
Mostra tutto
Prezzo Prezzo
€ 590.000
Rata mutuo Rata mutuo
€ 2.785 / mese
Spese annue Spese annue
€ 0
Proponi il tuo prezzoProponi il tuo prezzo

Classe Energetica

C
C
C
C
C
C
C
C
C
EP globale non rinnovabile:
110.45 kW h/m² anno
EP globale rinnovabile:
0.36 kW h/m² anno
EP invernale del fabbricato:
EP estiva del fabbricato:
Anno di costruzione:
1970
Riscaldamento:
Autonomo
Tipo impianto:
A radiatori
Tipo alimentazione:
Metano

Ti interessa visionare l'immobile?

Fissa un appuntamento  Fissa un appuntamento

Richiedi informazioni

Clicca su Leggi per aprire l'informativa
* Questi campi sono obbligatori

Calcola il tuo mutuo

Semplice e senza impegno
Anticipo

( % )
Mutuo

( % )

pochi semplici passi

inserisci i tuoi dati
Questionario completato
Grazie per aver richiesto un appuntamento senza impegno con un nostro Consulente del Credito e Assicurativo.

Hai inserito correttamente tutti i dati necessari e a breve riceverai una e-mail con un link da convalidare per inviare i tuoi dati.
Affiliato
Vega Srl
Via Venezia, 62/D 43122 Parma (PR)

Il nostro staff


  • Carmelo Siragusa
    Affiliato

  • Mattia Calderoni
    Collaboratore

  • Samuel Di Pierro
    Collaboratore

  • Lira Gosa
    Collaboratrice

  • Giulia Menozzi
    Coordinatrice
Via Venezia, 62/D 43122 Parma (PR)
Zona: Quartiere Paradigna - San Leonardo - Q.re Benedetta - Via Trieste
Mostra su mappa
Orari: Dal lunedì al venerdì 09:00 - 13:00 / 15:00 - 20:00; sabato chiusura alle 18,00.
Affiliato
Vega Srl
Via Venezia, 62/D 43122 Parma (PR)

2025 Tecnocasa Franchising S.p.A. - P. IVA 08365160152 - Via Monte Bianco 60/A 20089 Rozzano (MI). Ogni agenzia ha un proprio titolare ed è autonoma. Privacy policy | Policy utilizzo | Cookie policy